トップページ > メゾン越木岩A棟

販売物件情報

  • お気に入りリストを見る
  • 物件情報を印刷する
  • プリンタの設定で「背景を印刷する」と設定しないと「背景画像」が印刷されないことがあります。印刷の際には、必ず「背景を印刷する」設定にしてください。
中古マンション

メゾン越木岩A棟

この物件のお支払い例

物件価格
2,180万円
月々の支払い

頭金/ボーナス払い0円

56,767

※上記支払例の借入条件:金利0.52%、借入総額2,180万円、借入期間35年

中古+リノベーションのお支払い例

プラン
頭 金 万円

月々のお支払い75,047

ボーナス払い0円

※上記支払例の借入条件:金利0.52%、借入総額2,882万円、借入期間35年

所在地・交通

所在地 西宮市西平町41-1 メゾン越木岩A棟301
最寄駅 阪急甲陽線 苦楽園口 徒歩分数 12分
最寄バス停 徒歩分数
小学校校区 西宮市立北夙川小学校 中学校校区 西宮市立苦楽園中学校

※学校区は住所から自動判定したものであり、保証できる情報ではございません。正確な学校区はお問い合わせ下さい。

お問い合わせフォームはこちら

※地図上の「対象地」は「〒662-0093 兵庫県西宮市西平町」の場所を指しています。実際の場所ではない場合がございます。詳しくはお問い合わせください。

お問い合わせフォームはこちら

物件概要

価格 2,180万円(↓3.1%値下がり 種目 中古マンション
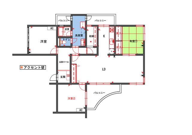
間取り 3SLDK 間取り内訳
専有面積 115.14㎡ 建物構造 RC
バルコニー面積 18.42㎡ 向き 北東
階数 3階建 所在階 3階
築年月(竣工月) 1974年12月 駐車場有無 空無
駐車場料金 7,200円 総戸数 12
管理費 19,600円 積立金 31,660円
土地権利 所有権 管理形態/方式 管理会社に全部委託/日勤
用途地域 第一種低層住居専用地域
現況 空家 取引態様 媒介
建築確認番号

取引条件等

引渡し 相談

その他

設備 浴室乾燥機、システムキッチン、食器洗浄乾燥機、BS端子、CATV、CS、モニタ付インターホン、バイク置き場、駐輪場
特徴 最上階
諸条件・相談
情報登録日 2026年3月28日 情報更新予定日 2026年4月27日
物件番号 90941
最近見た物件

閉じる 【特典付き】来店予約はこちら

ページの先頭へ