トップページ > ジョイフル御影

販売物件情報

  • お気に入りリストを見る
  • 物件情報を印刷する
  • プリンタの設定で「背景を印刷する」と設定しないと「背景画像」が印刷されないことがあります。印刷の際には、必ず「背景を印刷する」設定にしてください。
中古マンション

ジョイフル御影

この物件のお支払い例

物件価格
2,380万円
月々の支払い

頭金/ボーナス払い0円

61,975

※上記支払例の借入条件:金利0.52%、借入総額2,380万円、借入期間35年

中古+リノベーションのお支払い例

プラン
頭 金 万円

月々のお支払い80,255

ボーナス払い0円

※上記支払例の借入条件:金利0.52%、借入総額3,082万円、借入期間35年

所在地・交通

所在地 神戸市東灘区御影中町3丁目1-8 ジョイフル御影501
最寄駅 阪神本線 御影 徒歩分数 3分
最寄バス停 徒歩分数
小学校校区 神戸市立御影小学校 中学校校区 神戸市立御影中学校

※学校区は住所から自動判定したものであり、保証できる情報ではございません。正確な学校区はお問い合わせ下さい。

お問い合わせフォームはこちら

※地図上の「対象地」は「〒658-0054 兵庫県神戸市東灘区御影中町3丁目1番8号」の場所を指しています。実際の場所ではない場合がございます。詳しくはお問い合わせください。

お問い合わせフォームはこちら

物件概要

価格 2,380万円 種目 中古マンション
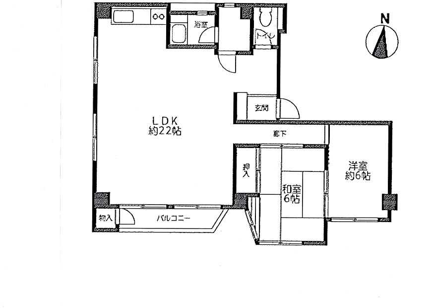
間取り 2LDK 間取り内訳
専有面積 73.89㎡ 建物構造 RC
バルコニー面積 4.11㎡ 向き
階数 7階建 所在階
築年月(竣工月) 1974年3月 駐車場有無
駐車場料金 総戸数 11
管理費 22,380円 積立金 24,310円
土地権利 所有権 管理形態/方式 管理会社に一部委託/巡回
用途地域 近隣商業地域
現況 空家 取引態様 媒介
建築確認番号

取引条件等

引渡し 即時

その他

設備 システムキッチン、都市ガス
特徴
諸条件・相談 [2沿線以上利用可]
情報登録日 2025年9月13日 情報更新予定日 2025年11月22日
物件番号 72476
最近見た物件

閉じる 【特典付き】来店予約はこちら

ページの先頭へ