トップページ > 尼崎市金楽寺町2丁目 

販売物件情報

  • お気に入りリストを見る
  • 物件情報を印刷する
  • プリンタの設定で「背景を印刷する」と設定しないと「背景画像」が印刷されないことがあります。印刷の際には、必ず「背景を印刷する」設定にしてください。
中古一戸建て

尼崎市金楽寺町2丁目 

この物件のお支払い例

物件価格
3,450万円
月々の支払い

頭金/ボーナス払い0円

89,838

※上記支払例の借入条件:金利0.52%、借入総額3,450万円、借入期間35年

中古+リノベーションのお支払い例

プラン
頭 金 万円

月々のお支払い114,185

ボーナス払い0円

※上記支払例の借入条件:金利0.52%、借入総額4,385万円、借入期間35年

所在地・交通

所在地 尼崎市金楽寺町2丁目 
最寄駅 東海道線 尼崎 徒歩分数 15分
最寄バス停 徒歩分数
小学校校区 尼崎市立金楽寺小学校 中学校校区 尼崎市立成良中学校

※学校区は住所から自動判定したものであり、保証できる情報ではございません。正確な学校区はお問い合わせ下さい。

お問い合わせフォームはこちら

※地図上の「対象地」は「兵庫県尼崎市金楽寺町2丁目21番」の場所を指しています。実際の場所ではない場合がございます。詳しくはお問い合わせください。

お問い合わせフォームはこちら

物件概要

価格 3,450万円(↓9.2%値下がり 種目 中古一戸建住宅
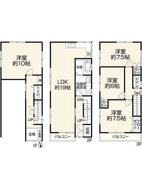
間取り 4LDK 間取り内訳
土地面積 75.92㎡ 私道面積
建物面積 135㎡ 建物構造規模 木造 3階建
築年月(竣工月) 1995年3月 駐車場 有 
建ぺい率/容積率 60%/180% 都市計画 市街化区域
接道状況 南4.5m 公道    
地目 宅地
土地権利 所有権 地勢
用途地域 第一種住居地域
現況 空家 取引態様 媒介
建築確認番号

取引条件等

引渡し 即時

その他

設備 温水洗浄便座、トイレ2ヶ所、浴室乾燥機、システムキッチン、食器洗浄乾燥機、都市ガス、上水道、下水道、モニタ付インターホン、[バス1坪以上]
特徴
諸条件・相談
情報登録日 2025年8月24日 情報更新予定日 2026年4月18日
物件番号 70364
最近見た物件

閉じる 【特典付き】来店予約はこちら

ページの先頭へ